ИНГРИД

3 147 000 ₽
Площадь:
Спален:
100,3 м²
3 (+1)
Размер:
Санузлов:
9 х 6
1 (+1)
Технология:
Каркасная

О доме

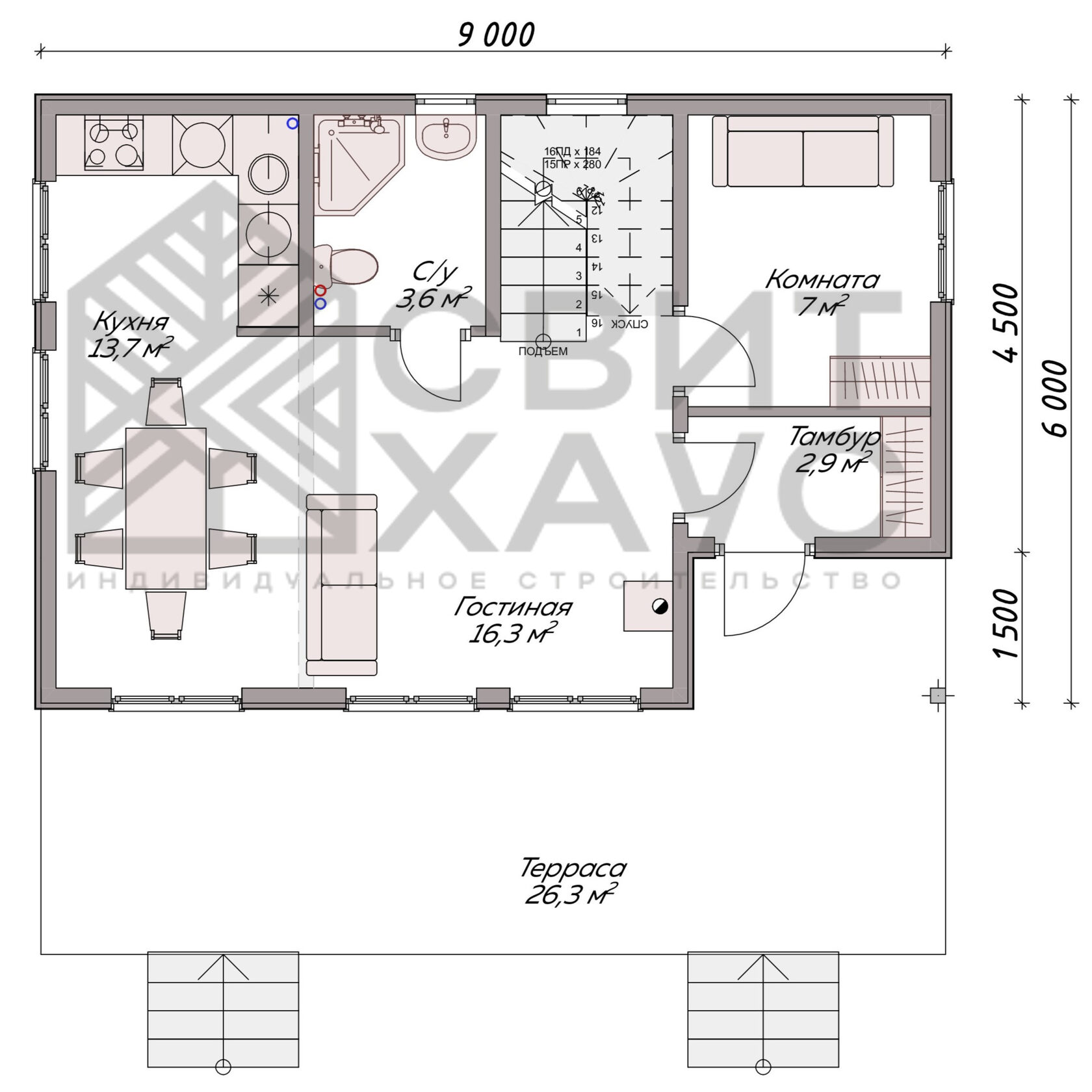
Первый этаж дома Ингрид – место, где расположено его “сердце”. Просторная гостиная, образующая единое пространство с кухонной зоной станет местом, в котором вам будет приятно проводить время с близкими. Благодаря архитектурному решению второго света здесь всегда будет светло и уютно. Спроектированная также на первом этаже небольшая комната площадью 7 квадратных метров может стать уединенным кабинетом для домашней работы, уютной библиотекой для наслаждения книгой в тишине или же, гостевой спальней. Тамбур защитит пространство от непогоды в любой сезон и поможет сохранить тепло внутри дома. Дополняет планировочное решение первого этажа санузел. Планировка второго этажа дома Ингрид минималистична: две спальни расположены в разных сторонах небольшого холла со вторым светом.
Проект Ингрид - это дом, в котором светлая атмосфера тепла и уюта согреет вас даже в самую суровую и холодную зиму.
Эстетичное архитектурное решение для тех, кто ценит светлые дома с планировками, создающими ощущение простора и свободы.

Хотите внести изменения в планировку?
Обсудите с нашим архитектором на бесплатной консультации
Немного о построенном:
дом с отделкой в британском стиле
Этот проект выполнен на основе дома Грета - наш выставочный дом у метро Домодедовская. Ингрид - очень компактная и уютная вариация. В доме есть 3 спальни и просторная кухня-гостиная, а панорамное остекление первого этажа и второй свет создают сказочное настроение для домочадцев и их гостей.
На фото дом в зимней комплектации, а значит предназначен для комфортного круглогодичного проживания. Внешняя отделка - фасадная плитка HAUBERK (гибкая панель); внутренняя отделка - имитация бруса; потолок - евровагонка. Индивидуальная лестница.

Некоторые вариации проекта: на втором этаже можно добавить ещё один санузел (так они будут расположены один над другим); в зоне кухни расположить техпомещение; тамбур увеличить за счет крыльца, вытянув главный фасад дома в одну линию и прочее.
Как и все наши проекты, дом можно отзеркалить, развернуть одно из крыльев, изменить площадь, поменять размеры и расположение окон, форму кровли, материалы отделки и назначение помещений. А так же выполнить все коммуникации (открытым или скрытым способом), плиточные работы и окрашивание.

Заказать дом можно и без внутренней отделки (закрыт тёплый контур). У нас это Комплектация "Дом под отделку". Это очень хорошее предложение, если вы хотите разбить строительство на этапы или планируете самостоятельно провести чистовые работы.
Комплектация «Дом под отделку»
Комплектация «Оптимальная»
Элементы конструкции каркаса
  • Влажность конструктивных элементов силового каркаса и всех отделочных материалов: камерная сушка транспортировочной влажности 18% +/- 4%;

  • Деревянный составной ростверк с разнонаправленными волокнами: составной из 3 досок каждая 40мм х 200мм; обвязка выполняется из доски хвойных пород сечением 40мм х 200мм (суммарное сечение 120мм х 200мм), крепится к пластинам свайного фундамента на болты-глухари; между обвязкой и фундаментом прокладывается гидроизол;

  • Обработка древесины огнебиозащитным составом: антисептическая обработка цокольного перекрытия и ростверка силового каркаса; антисептирующий состав Неомид;

  • Обвязка ростверка: доска 40мм х150мм;

  • Каркас внешних стен (I и II этажей): доски (стойки) сечением 40мм х 150мм (+/- 5мм) из древесины хвойных пород; наличие диагональных усилений стен + контрбрус сечением 40мм х 50мм под дополнительное утепление внешних стен "перекрёстным" способом на 50мм;

  • Каркас внутренних стен (I и II этажей): доски (стойки) сечением 40мм х 150мм / сечением 40мм х 100мм (по проекту!) из древесины хвойных пород; наличие диагональных усилений стен;

  • Перекрытие цокольное: доски (балки) цокольного перекрытия сечением 40мм х 200мм (+/- 5мм) из древесины хвойных пород с шагом не более 630мм по центрам (из расчета нагрузок);

  • Перекрытие межэтажное: доски (балки) межэтажного перекрытия сечением 40мм х 200мм (+/- 5мм) из древесины хвойных пород с шагом не более 630мм по центрам (из расчета нагрузок);

  • Перекрытие террасы: доски (балки) межэтажного перекрытия сечением 40мм х 200мм (+/- 5мм) из древесины хвойных пород с шагом не более 630мм по центрам (из расчета нагрузок);

  • Стропильная система: доски (балки) стропильной системы сечением 40мм х 200мм (+/- 5мм) из древесины хвойных пород с шагом не более 630мм по центрам (из расчета нагрузок);

  • Обрешетка (под покрытие кровли): доска обрезная 25мм х 150мм;

  • Обрешетка (подшив перекрытия цоколя): доска обрезная 25мм х 150мм (черновой пол);

  • Контрбрус на фасад и кровлю: брусок строганый 40мм х 40мм (для вентилируемого фасада).
Комплектация «Дом под отделку»

Комплектация «Оптимальная»

  • Влажность конструктивных элементов силового каркаса и всех отделочных материалов: камерная сушка транспортировочной влажности 18% +/- 4%;

  • Деревянный составной ростверк с разнонаправленными волокнами: составной из 3 досок, каждая 40мм х 200мм; обвязка выполняется из доски хвойных пород сечением 40мм х 200мм (суммарное сечение 120мм х 200мм), крепится к пластинам свайного фундамента на болты-глухари; между обвязкой и фундаментом прокладывается гидроизол;

  • Обработка древесины огнебиозащитным составом: антисептическая обработка цокольного перекрытия и ростверка силового каркаса; антисептирующий состав Неомид;

  • Обвязка ростверка: доска 40мм х150мм;

  • Каркас внешних стен (I и II этажей): доски (стойки) сечением 40мм х 150мм (+/- 5мм) из древесины хвойных пород; наличие диагональных усилений стен + контрбрус сечением 40мм х 50мм под дополнительное утепление внешних стен "перекрёстным" способом на 50мм;

  • Каркас внутренних стен (I и II этажей): доски (стойки) сечением 40мм х 150мм / сечением 40мм х 100мм (по проекту!) из древесины хвойных пород; наличие диагональных усилений стен;

  • Перекрытие цокольное: доски (балки) цокольного перекрытия сечением 40мм х 200мм (+/- 5мм) из древесины хвойных пород с шагом не более 630мм по центрам (из расчета нагрузок);

  • Перекрытие межэтажное: доски (балки) межэтажного перекрытия сечением 40мм х 200мм (+/- 5мм) из древесины хвойных пород с шагом не более 630мм по центрам (из расчета нагрузок);

  • Перекрытие террасы: доски (балки) межэтажного перекрытия сечением 40мм х 200мм (+/- 5мм) из древесины хвойных пород с шагом не более 630мм по центрам (из расчета нагрузок);

  • Стропильная система: доски (балки) стропильной системы сечением 40мм х 200мм (+/- 5мм) из древесины хвойных пород с шагом не более 630мм по центрам (из расчета нагрузок);

  • Обрешетка (под покрытие кровли): доска обрезная 25мм х 150мм;

  • Обрешетка (подшив перекрытия цоколя): доска обрезная 25мм х 150мм (черновой пол);

  • Контрбрус на фасад и кровлю: брусок строганный 40мм х 40мм (для вентилируемого фасада).
Отделка
  • Материал обшивки внешних стен (I и II этажей): ОСП-3 толщиной 12мм;

  • Материал обшивки внутренних стен (I и II этажей): отсутствует;

  • Финишное покрытие потолка внутри дома (на I и II этажах): ОСП-3 толщиной 12мм;

  • Финишное покрытие потолка террасы / крыльца / балконов: каркас из доски сечением 25мм х 150мм (+/- 5мм) из древесины хвойных пород;

  • Финишное покрытие кровли: металлочерепица, производитель Grand Line, серия Classic, толщина стали 0,5мм; цвет на выбор Заказчика;

  • Свесы кровли - вынос крыши по периметру дома (размер 0,5м): каркас из доски сечением 25мм х 150мм (+/- 5мм) из древесины хвойных пород.


  • Материал обшивки внешних стен (I и II этажей): широкая имитация бруса сечением 20мм х 190мм из древесины хвойных пород камерной сушки класса АВ; наличники окон и углы дома из строганой доски камерной сушки; крепёж осуществляется анодированными метизами;

  • Материал обшивки внутренних стен (I и II этажей): широкая имитация бруса сечением 20мм х 190мм из древесины хвойных пород камерной сушки класса АВ; наличники окон и углы дома из строганой доски камерной сушки; крепёж осуществляется анодированными метизами;

  • Финишное покрытие потолка внутри дома (на I и II этажах): вагонка сечением 13мм х 115мм из древесины хвойных пород камерной сушки класса АВ; отделка осуществляется вместе с фурнитурой (плинтусы, углы);

  • Финишное покрытие потолка террасы / крыльца / балконов: вагонка сечением 13мм х 115мм из древесины хвойных пород камерной сушки класса АВ; отделка осуществляется вместе с фурнитурой (плинтусы, углы);

  • Финишное покрытие кровли: металлочерепица, производитель Grand Line, серия Classic, толщина стали 0,5мм; цвет на выбор Заказчика;

  • Свесы кровли - вынос крыши по периметру дома (размер 0,5м): вагонка сечением 13мм х 115мм из древесины хвойных пород камерной сушки класса АВ; отделка осуществляется вместе с фурнитурой (плинтусы, углы).
Комплектация «Дом под отделку»

Комплектация «Оптимальная»

Теплоизоляция
  • Толщина утепления внешних стен: 200мм "перекрёстным" способом;

  • Толщина утепления внутренних стен (по проекту): 100мм / 150мм (по проекту);

  • Толщина утепления цокольного перекрытия: 200мм;

  • Толщина утепления межэтажного перекрытия: 200мм;

  • Толщина утепления кровли: 200мм;

  • Материал утеплителя на вертикальных плоскостях: каменно-базальтовая вата (плитный);

  • Материал утеплителя на горизонтальных плоскостях: каменно-базальтовая вата (плитный).
  • Толщина утепления внешних стен: 200мм "перекрёстным" способом;

  • Толщина утепления внутренних стен (по проекту): 100мм / 150мм (по проекту);

  • Толщина утепления цокольного перекрытия: 200мм;

  • Толщина утепления межэтажного перекрытия: 200мм;

  • Толщина утепления кровли: 200мм;

  • Материал утеплителя на вертикальных плоскостях: каменно-базальтовая вата (плитный);

  • Материал утеплителя на горизонтальных плоскостях: каменно-базальтовая вата (плитный).
Комплектация «Дом под отделку»

Комплектация «Оптимальная»

Цоколь, пол, терасса
  • Финишное покрытие пола внутри дома (на I и II этажах): подготовка под ламинат (фанера толщиной 18мм);

  • Финишное покрытие пола террасы, крыльца (и балконов): строганая доска порода ель / сосна камерной сушки;

  • Отливы цоколя: металлические оцинкованные отливы (цвет на выбор);

  • Крыльцо и терраса: перила и ограждения отсутствуют.
  • Финишное покрытие пола внутри дома (на I и II этажах): подготовка под ламинат (фанера толщиной 18мм);

  • Финишное покрытие пола террасы, крыльца (и балконов): строганая доска порода ель / сосна камерной сушки;

  • Отливы цоколя: металлические оцинкованные отливы (цвет на выбор);

  • Крыльцо и терраса: перила и ограждения выполняются из строганой доски.
Комплектация «Дом под отделку»

Комплектация «Оптимальная»

Окна, двери, лестницы
  • Оконные конструкции (I и II этаж): оконные конструкции Rehau с шириной профиля 60мм, цвет профиля белый, двухкамерный стеклопакет (3 стекла); фурнитура Roto; монтаж металлических оцинкованных подоконных отливов (цвет на выбор);

  • Двери: входная дверь металлическая утеплённая, 4 класс взломостойкости;

  • Лестница: временная межэтажная строительная техническая;

  • Мембраны: подкровельная супердиффузионная мембрана; внешняя ветровлагозащитная мембрана стен; внутренняя пароизоляционная мембрана перекрытий и стен; производитель всех мембран чешский концерн "Juta".
  • Оконные конструкции (I и II этаж): оконные конструкции Rehau с шириной профиля 60 мм, цвет профиля белый, двухкамерный стеклопакет (3 стекла); фурнитура Roto; монтаж металлических оцинкованных подоконных отливов (цвет на выбор);

  • Двери: входная дверь металлическая утеплённая, 4 класс взломостойкости;

  • Лестница: временная межэтажная строительная техническая;

  • Мембраны: подкровельная супердиффузионная мембрана; внешняя ветровлагозащитная мембрана стен; внутренняя пароизоляционная мембрана перекрытий и стен; производитель всех мембран чешский концерн "Juta".
Комплектация «Дом под отделку»

Комплектация «Оптимальная»

Прочее
  • Крепёж: гвозди, саморезы, скобы и прочее - оцинкованный крепёж;

  • Доставка: стоимость доставки всех материалов для силового каркаса и отделочных материалов включена до А-107 ("Московское малое кольцо"); далее стоимость доставки рассчитывается индивидуально, т.к. зависит от удалённости и наличия подъездных путей к участку застройки;

  • Проживание рабочих: доставка и размещение бригады строителей в бытовке включены на весь срок строительства; стоимость доставки включена до А-107, далее стоимость доставки и увоза бытовки рассчитывается отдельно, т.к. зависит от удалённости и наличия подъездных путей для манипулятора; при наличии бытовки у Заказчика включено её обустройство.


  • Крепёж: гвозди, саморезы, скобы и прочее - оцинкованный крепёж;

  • Доставка: стоимость доставки всех материалов для силового каркаса и отделочных материалов включена до А-107 ("Московское малое кольцо"); далее стоимость доставки рассчитывается отдельно, т.к. зависит от удалённости и наличия подъездных путей к участку застройки;

  • Проживание рабочих: доставка и размещение бригады строителей в бытовке включены на весь срок строительства; стоимость доставки включена до А-107, далее стоимость доставки и увоза бытовки рассчитывается отдельно, т.к. зависит от удалённости и наличия подъездных путей для манипулятора; при наличии бытовки у Заказчика включено её обустройство.
Комплектация «Дом под отделку»

Комплектация «Оптимальная»

3 147 000 ₽
3 872 000 ₽
Комплектация «Дом под отделку»
Комплектация «Оптимальная»
ИНГРИД
Вы выбрали дом “Ингрид”. Отличный выбор.
Оставьте ваши данные в форме ниже. Специалисты отдела продаж свяжутся с вами и подберут время для встречи.
Михаил Романцов
Руководитель
Или свяжитесь с нами удобным способом: