МАРТА

4 272 000 ₽
Площадь:
Спален:
149,8 м²

4

Размер:
Санузлов:
12,1 х 8,7

2

Технология:
Каркасная

Презентабельный проект с двухуровневой крышей, прямоугольным эркером, большими окнами и просторной террасой великолепно смотрится в благородных природных оттенках внешней отделки. Он идеально впишется в любой ландшафт.

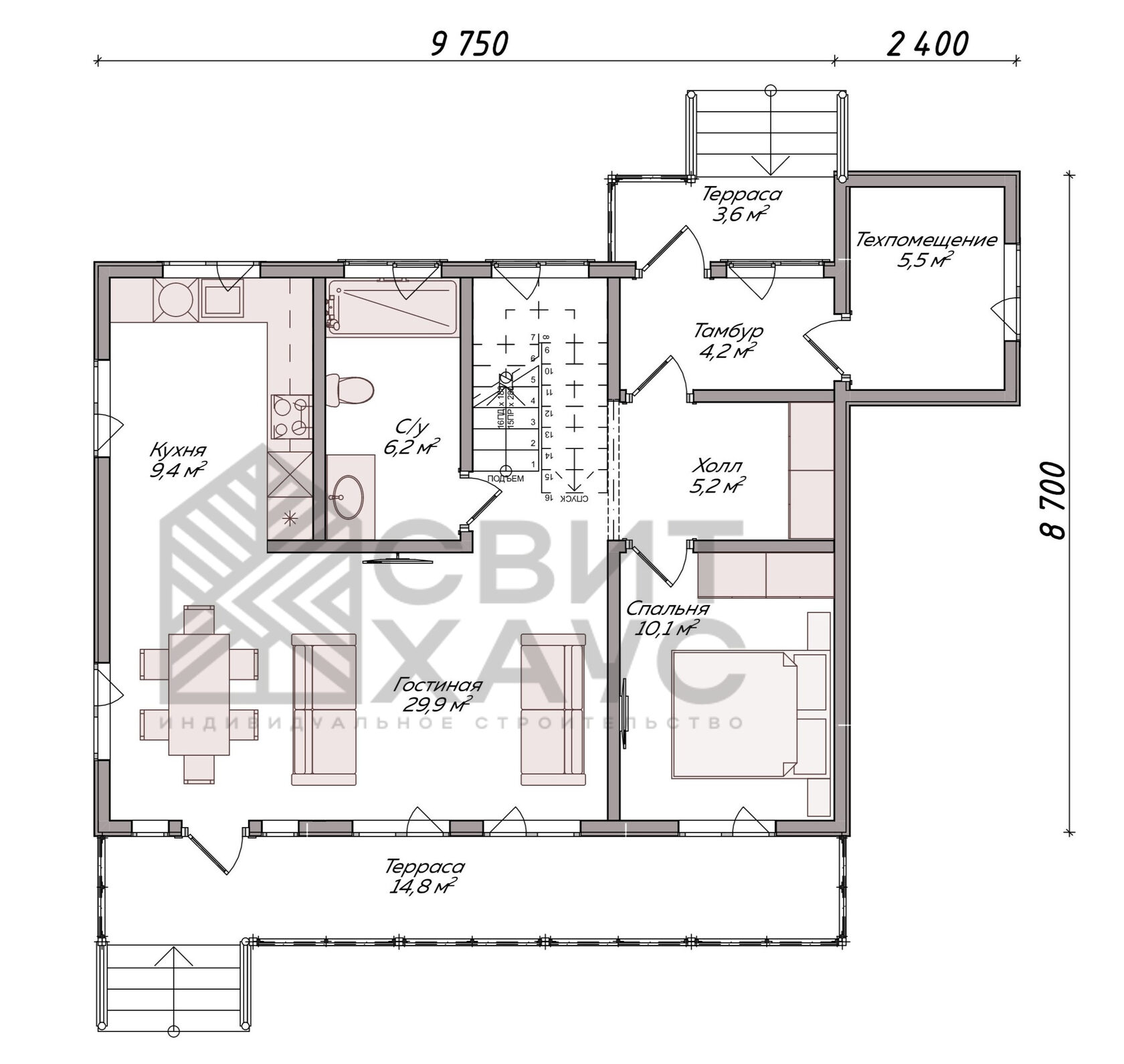
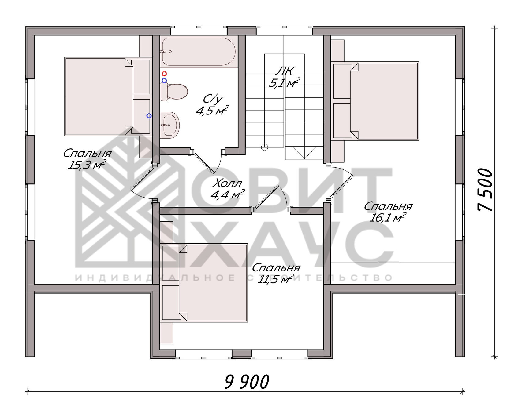
На двух этажах расположились все необходимые помещения для встреч с близкими и совместных уютных вечеров. В проекте первого этажа дома Марта есть большая гостиная, в которой хватит места и для полноценной столовой зоны. Из гостиной можно выйти на террасу, где прохладным летним вечером будет приятно насладиться чашечкой чая в окружении природы. Кухня образует с гостиной единое пространство, но в то же время немного обособлена. Также планировочное решение первого этажа включает одну спальню, которая может использоваться как комната для гостей или кабинет. Дополняют планировку санузел и теплый тамбур с выходом в изолированное техническое помещение, в котором вы сможете разместить инженерные коммуникации. На втором этаже дома Марта расположены три спальни и еще один санузел.

Марта – идеальный дом для семьи из нескольких человек. Просторный, практичный и функциональный, он сделает вашу жизнь за городом по-настоящему комфортной.

О ДОМЕ

Немного о построенном:
дом с чудесной террасой
Этот проект выполнен на основе дома Грета - наш выставочный дом у метро Домодедовская. Проект Марта отличается наличием и тамбура, и холла, что увеличивает зону хранения и создает буферную зону, позволяющую сохранять тепло в доме, что особенно актуально зимой.
На фото дом в зимней комплектации, а значит предназначен для комфортного круглогодичного проживания. Внешняя и внутренняя отделка - имитация бруса; потолок - евровагонка. Индивидуальная лестница.

Некоторые вариации проекта: данный проект был построен изначально без технического помещения, но, в ходе эксплуатации, стало ясно, что оно требуется, поэтому в дальнейшем выполнили пристройку. Этот проект очень удачный, т.к. в нем есть всё необходимое, и добавить можно только одну спальню, вместо кухни, которая тогда переместится в зону гостиной. Такое решение подойдет для большой семьи.

Как и все наши проекты, дом можно отзеркалить, развернуть одно из крыльев, изменить площадь, поменять размеры и расположение окон, форму кровли, материалы отделки и назначение помещений. А так же выполнить все коммуникации (открытым или скрытым способом), плиточные работы и окрашивание.
Заказать дом можно и без внутренней отделки (тёплый контур).
Почему индивидуальное строительство учитывает интересы Заказчика
Нет типовых комплектаций
На сайте представлены 2 вида комплектаций, но вы можете выбрать любые сочетания опций или добавить какие-то свои: например, изменить высоту потолка, выбрать мягкую кровлю, сделать тёплый пол или всегда мечтали о камине. И не забывайте об инженерных коммуникациях, ведь не у всех участок газифицирован.
Learn more
Индивидуальный расчет
Когда готов ваш проект, а значит есть все размеры и площади, в Договор вносятся все выбранные вами опции, после чего и рассчитывается стоимость. Например: если вы хотите внешнюю отделку заменить на фасадные панели, то стоимость услуги зависит от площади внешних стен по вашему проекту, и бренда фасадных панелей, которые выбираете вы сами.
Learn more
Дом под отделку
Комплектация дома с закрытым тёплым контуром без внутренней отделки.
Это очень хорошее предложение, если вы хотите разбить строительство на этапы или у вас "золотые руки" и вы планируете самостоятельно провести чистовые работы.
Learn more
Строим вместе
Если у вас уже есть какая-то часть строительных материалов, или вы можете приобрести их с существенным дисконтом (вы или ваши близкие производитель или работаете на производстве), тогда мы внесем в Договор только стоимость работ, а материал будет предоставлен вами.
Learn more
Комплектация «Дом под отделку»
Комплектация «Оптимальная»
Элементы конструкции каркаса
  • Влажность конструктивных элементов силового каркаса и всех отделочных материалов: камерная сушка транспортировочной влажности 18% +/- 4%;

  • Деревянный составной ростверк с разнонаправленными волокнами: составной из 3 досок каждая 40мм х 200мм; обвязка выполняется из доски хвойных пород сечением 40мм х 200мм (суммарное сечение 120мм х 200мм), крепится к пластинам свайного фундамента на болты-глухари; между обвязкой и фундаментом прокладывается гидроизол;

  • Обработка древесины огнебиозащитным составом: антисептическая обработка цокольного перекрытия и ростверка силового каркаса; антисептирующий состав Неомид;

  • Обвязка ростверка: доска 40мм х150мм;

  • Каркас внешних стен (I и II этажей): доски (стойки) сечением 40мм х 150мм (+/- 5мм) из древесины хвойных пород; наличие диагональных усилений стен + контрбрус сечением 40мм х 50мм под дополнительное утепление внешних стен "перекрёстным" способом на 50мм;

  • Каркас внутренних стен (I и II этажей): доски (стойки) сечением 40мм х 150мм / сечением 40мм х 100мм (по проекту!) из древесины хвойных пород; наличие диагональных усилений стен;

  • Перекрытие цокольное: доски (балки) цокольного перекрытия сечением 40мм х 200мм (+/- 5мм) из древесины хвойных пород с шагом не более 630мм по центрам (из расчета нагрузок);

  • Перекрытие межэтажное: доски (балки) межэтажного перекрытия сечением 40мм х 200мм (+/- 5мм) из древесины хвойных пород с шагом не более 630мм по центрам (из расчета нагрузок);

  • Перекрытие террасы: доски (балки) межэтажного перекрытия сечением 40мм х 200мм (+/- 5мм) из древесины хвойных пород с шагом не более 630мм по центрам (из расчета нагрузок);

  • Стропильная система: доски (балки) стропильной системы сечением 40мм х 200мм (+/- 5мм) из древесины хвойных пород с шагом не более 630мм по центрам (из расчета нагрузок);

  • Обрешетка (под покрытие кровли): доска обрезная 25мм х 150мм;

  • Обрешетка (подшив перекрытия цоколя): доска обрезная 25мм х 150мм (черновой пол);

  • Контрбрус на фасад и кровлю: брусок строганый 40мм х 40мм (для вентилируемого фасада).
Комплектация «Дом под отделку»

Комплектация «Оптимальная»

  • Влажность конструктивных элементов силового каркаса и всех отделочных материалов: камерная сушка транспортировочной влажности 18% +/- 4%;

  • Деревянный составной ростверк с разнонаправленными волокнами: составной из 3 досок, каждая 40мм х 200мм; обвязка выполняется из доски хвойных пород сечением 40мм х 200мм (суммарное сечение 120мм х 200мм), крепится к пластинам свайного фундамента на болты-глухари; между обвязкой и фундаментом прокладывается гидроизол;

  • Обработка древесины огнебиозащитным составом: антисептическая обработка цокольного перекрытия и ростверка силового каркаса; антисептирующий состав Неомид;

  • Обвязка ростверка: доска 40мм х150мм;

  • Каркас внешних стен (I и II этажей): доски (стойки) сечением 40мм х 150мм (+/- 5мм) из древесины хвойных пород; наличие диагональных усилений стен + контрбрус сечением 40мм х 50мм под дополнительное утепление внешних стен "перекрёстным" способом на 50мм;

  • Каркас внутренних стен (I и II этажей): доски (стойки) сечением 40мм х 150мм / сечением 40мм х 100мм (по проекту!) из древесины хвойных пород; наличие диагональных усилений стен;

  • Перекрытие цокольное: доски (балки) цокольного перекрытия сечением 40мм х 200мм (+/- 5мм) из древесины хвойных пород с шагом не более 630мм по центрам (из расчета нагрузок);

  • Перекрытие межэтажное: доски (балки) межэтажного перекрытия сечением 40мм х 200мм (+/- 5мм) из древесины хвойных пород с шагом не более 630мм по центрам (из расчета нагрузок);

  • Перекрытие террасы: доски (балки) межэтажного перекрытия сечением 40мм х 200мм (+/- 5мм) из древесины хвойных пород с шагом не более 630мм по центрам (из расчета нагрузок);

  • Стропильная система: доски (балки) стропильной системы сечением 40мм х 200мм (+/- 5мм) из древесины хвойных пород с шагом не более 630мм по центрам (из расчета нагрузок);

  • Обрешетка (под покрытие кровли): доска обрезная 25мм х 150мм;

  • Обрешетка (подшив перекрытия цоколя): доска обрезная 25мм х 150мм (черновой пол);

  • Контрбрус на фасад и кровлю: брусок строганный 40мм х 40мм (для вентилируемого фасада).
Отделка
  • Материал обшивки внешних стен (I и II этажей): ОСП-3 толщиной 12мм;

  • Материал обшивки внутренних стен (I и II этажей): отсутствует;

  • Финишное покрытие потолка внутри дома (на I и II этажах): ОСП-3 толщиной 12мм;

  • Финишное покрытие потолка террасы / крыльца / балконов: каркас из доски сечением 25мм х 150мм (+/- 5мм) из древесины хвойных пород;

  • Финишное покрытие кровли: металлочерепица, производитель Grand Line, серия Classic, толщина стали 0,5мм; цвет на выбор Заказчика;

  • Свесы кровли - вынос крыши по периметру дома (размер 0,5м): каркас из доски сечением 25мм х 150мм (+/- 5мм) из древесины хвойных пород.


  • Материал обшивки внешних стен (I и II этажей): широкая имитация бруса сечением 20мм х 190мм из древесины хвойных пород камерной сушки класса АВ; наличники окон и углы дома из строганой доски камерной сушки; крепёж осуществляется анодированными метизами;

  • Материал обшивки внутренних стен (I и II этажей): широкая имитация бруса сечением 20мм х 190мм из древесины хвойных пород камерной сушки класса АВ; наличники окон и углы дома из строганой доски камерной сушки; крепёж осуществляется анодированными метизами;

  • Финишное покрытие потолка внутри дома (на I и II этажах): вагонка сечением 13мм х 115мм из древесины хвойных пород камерной сушки класса АВ; отделка осуществляется вместе с фурнитурой (плинтусы, углы);

  • Финишное покрытие потолка террасы / крыльца / балконов: вагонка сечением 13мм х 115мм из древесины хвойных пород камерной сушки класса АВ; отделка осуществляется вместе с фурнитурой (плинтусы, углы);

  • Финишное покрытие кровли: металлочерепица, производитель Grand Line, серия Classic, толщина стали 0,5мм; цвет на выбор Заказчика;

  • Свесы кровли - вынос крыши по периметру дома (размер 0,5м): вагонка сечением 13мм х 115мм из древесины хвойных пород камерной сушки класса АВ; отделка осуществляется вместе с фурнитурой (плинтусы, углы).
Комплектация «Дом под отделку»

Комплектация «Оптимальная»

Теплоизоляция
  • Толщина утепления внешних стен: 200мм "перекрёстным" способом;

  • Толщина утепления внутренних стен (по проекту): 100мм / 150мм (по проекту);

  • Толщина утепления цокольного перекрытия: 200мм;

  • Толщина утепления межэтажного перекрытия: 200мм;

  • Толщина утепления кровли: 200мм;

  • Материал утеплителя на вертикальных плоскостях: каменно-базальтовая вата (плитный);

  • Материал утеплителя на горизонтальных плоскостях: каменно-базальтовая вата (плитный).
  • Толщина утепления внешних стен: 200мм "перекрёстным" способом;

  • Толщина утепления внутренних стен (по проекту): 100мм / 150мм (по проекту);

  • Толщина утепления цокольного перекрытия: 200мм;

  • Толщина утепления межэтажного перекрытия: 200мм;

  • Толщина утепления кровли: 200мм;

  • Материал утеплителя на вертикальных плоскостях: каменно-базальтовая вата (плитный);

  • Материал утеплителя на горизонтальных плоскостях: каменно-базальтовая вата (плитный).
Комплектация «Дом под отделку»

Комплектация «Оптимальная»

Цоколь, пол, терраса
  • Финишное покрытие пола внутри дома (на I и II этажах): подготовка под ламинат (фанера толщиной 18мм);

  • Финишное покрытие пола террасы, крыльца (и балконов): строганая доска порода ель / сосна камерной сушки;

  • Отливы цоколя: металлические оцинкованные отливы (цвет на выбор);

  • Крыльцо и терраса: перила и ограждения отсутствуют.
  • Финишное покрытие пола внутри дома (на I и II этажах): подготовка под ламинат (фанера толщиной 18мм);

  • Финишное покрытие пола террасы, крыльца (и балконов): строганая доска порода ель / сосна камерной сушки;

  • Отливы цоколя: металлические оцинкованные отливы (цвет на выбор);

  • Крыльцо и терраса: перила и ограждения выполняются из строганой доски.
Комплектация «Дом под отделку»

Комплектация «Оптимальная»

Окна, двери, лестницы
  • Оконные конструкции (I и II этаж): оконные конструкции Rehau с шириной профиля 60мм, цвет профиля белый, двухкамерный стеклопакет (3 стекла); фурнитура Roto; монтаж металлических оцинкованных подоконных отливов (цвет на выбор);

  • Двери: входная дверь металлическая утеплённая, 4 класс взломостойкости;

  • Лестница: временная межэтажная строительная техническая;

  • Мембраны: подкровельная супердиффузионная мембрана; внешняя ветровлагозащитная мембрана стен; внутренняя пароизоляционная мембрана перекрытий и стен; производитель всех мембран чешский концерн "Juta".
  • Оконные конструкции (I и II этаж): оконные конструкции Rehau с шириной профиля 60 мм, цвет профиля белый, двухкамерный стеклопакет (3 стекла); фурнитура Roto; монтаж металлических оцинкованных подоконных отливов (цвет на выбор);

  • Двери: входная дверь металлическая утеплённая, 4 класс взломостойкости;

  • Лестница: временная межэтажная строительная техническая;

  • Мембраны: подкровельная супердиффузионная мембрана; внешняя ветровлагозащитная мембрана стен; внутренняя пароизоляционная мембрана перекрытий и стен; производитель всех мембран чешский концерн "Juta".
Комплектация «Дом под отделку»

Комплектация «Оптимальная»

Прочее
  • Крепёж: гвозди, саморезы, скобы и прочее - оцинкованный крепёж;

  • Доставка: стоимость доставки всех материалов для силового каркаса и отделочных материалов включена до А-107 ("Московское малое кольцо"); далее стоимость доставки рассчитывается индивидуально, т.к. зависит от удалённости и наличия подъездных путей к участку застройки;

  • Проживание рабочих: доставка и размещение бригады строителей в бытовке включены на весь срок строительства; стоимость доставки включена до А-107, далее стоимость доставки и увоза бытовки рассчитывается отдельно, т.к. зависит от удалённости и наличия подъездных путей для манипулятора; при наличии бытовки у Заказчика включено её обустройство.


  • Крепёж: гвозди, саморезы, скобы и прочее - оцинкованный крепёж;

  • Доставка: стоимость доставки всех материалов для силового каркаса и отделочных материалов включена до А-107 ("Московское малое кольцо"); далее стоимость доставки рассчитывается отдельно, т.к. зависит от удалённости и наличия подъездных путей к участку застройки;

  • Проживание рабочих: доставка и размещение бригады строителей в бытовке включены на весь срок строительства; стоимость доставки включена до А-107, далее стоимость доставки и увоза бытовки рассчитывается отдельно, т.к. зависит от удалённости и наличия подъездных путей для манипулятора; при наличии бытовки у Заказчика включено её обустройство.
Комплектация «Дом под отделку»

Комплектация «Оптимальная»

4 272 000 ₽
5 255 000 ₽
Комплектация «Дом под отделку»
Комплектация «Оптимальная»